|
Casa en Fátima
|
 |
Country CUBA - Fátima, Pilar, Provincia de Buenos Aires, 1996 - 2005
710m2 (480m2 etapa I, 230m2 etapa II)
Proyecto, dirección y gerenciamiento de obra. Obra original y posterior ampliación.
Obra realizada junto con el arq. Leandro O´Flaherty.
|
|
Casa en Estancia Abril
|
|

|
Berazategui, Provincia de Buenos Aires, 2004
900m2
Proyecto dirección y gerenciamiento de obra.
Obra realizada junto con la arq. Silvina Zambruno. Colaboradora: arq. Rosana Durán
|
| Dúplex en Belgrano |
|

|
Ciudad Autónoma de Buenos Aires, 2004
220m2
Proyecto, dirección y gerenciamiento de obra junto con el arq. Pablo Seggiaro.
Colaboradora: arq. Rosana Durán.
|
|
Casa en Vicente López
|
|

|
Provincia de Buenos Aires, 2000
470m2
Proyecto, dirección y gerenciamiento de obra.
|
| Casa en General Rodríguez |
 |
Provincia de Buenos Aires, 2008
200m2
Proyecto.
|
|
Departamento en Palermo Chico
|
|

|
Ciudad Autónoma de Buenos Aires, 2008
350m2
Proyecto, dirección y gerenciamiento de obra de refacción y adecuación.
Colaborador: Arq. Matías Schisano
|
|
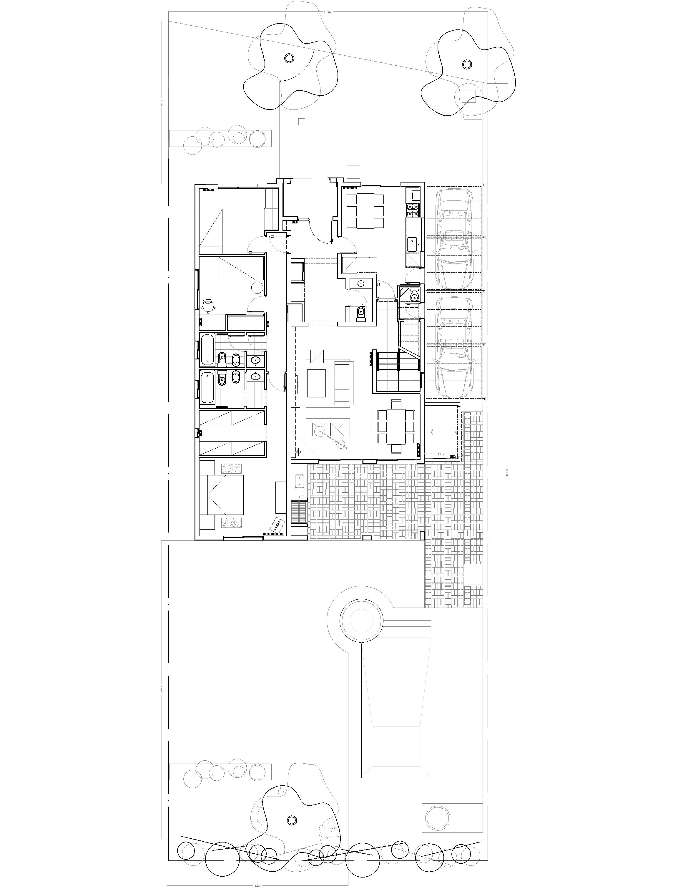
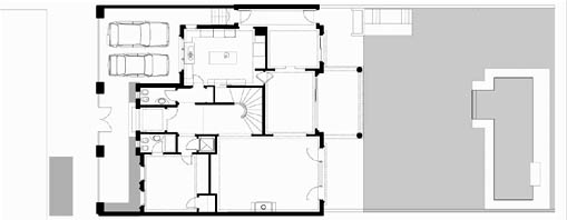
Casa en Isla del Sol
|
|

|
Barrio Isla del Sol, Tigre, Pcia. de Buenos Aires, 2007
240m2
Proyecto, dirección y gerenciamiento de obra de refacción y ampliación.
Colaborador: Arq. Matías Schisano
|
|
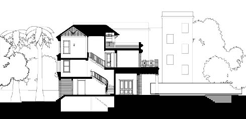
Casa en Caballito
|
|
|
Calle Valle, Ciudad Autónoma de Buenos Aires, 2009
Proyecto, dirección y gerenciamiento de obras de refacción y ampliación.
|
|
Departamento en Avenida Santa Fe
|
|
|
Av. Santa Fe y Rodríguez Peña, Ciudad Autónoma de Buenos Aires, 1999
Proyecto, dirección y gerenciamiento de obras de refacción y puesta en valor de departamento de estilo.
|
|
Casa en Villa Devoto
|
|
|
Ciudad Autónoma de Buenos Aires, 2005
Proyecto, dirección y gerenciamiento de obras de refacción y ampliación.
|
|
Otras refacciones (Ciudad Autónoma de Buenos Aries)
|
|
|
- Montevideo 1614
- Güemes 4030
- Montevideo 1845
- Azcuénaga 1057
- Av de los Incas 3370
- Virrey Loreto 2493
|
|