John Crane Argentina SA

Provincia Buenos Aires, 2003

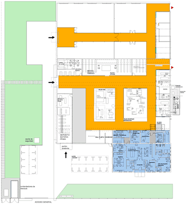
1600m2

Adecuación de planta industrial y ampliación de oficinas en Calle Mozart s/n, Parque Industrial Garín. 
 

 

   
   

 

Repiky
 

         
   
   

 

Flow Serve
 

         

   
   
Powered by FerozoSiteWeb hosting de Dattatec