Asociado a la Asociación Argentina de Arquitectura e Ingeniería Hospitalaria.
Participante en cursos de capacitación, y Congresos de la especialidad (desde 1998).
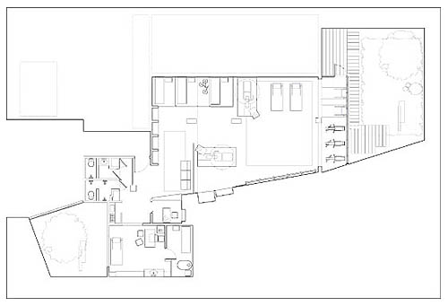
| RTC La Plata |
 |
La Plata, Provincia de Buenos Aires, 1999
1000m2, en planta baja y planta alta
Proyecto, dirección y gerenciamiento de obra. Centro de tratamiento renal.
Obra realizada con el arq. Leandro O`Flaherty.
Colaboraron: Duran, Rosana (ssr. arq.), Rohlic. Karina (hab.) Contratista ppal.: BRIALES S.A.
|
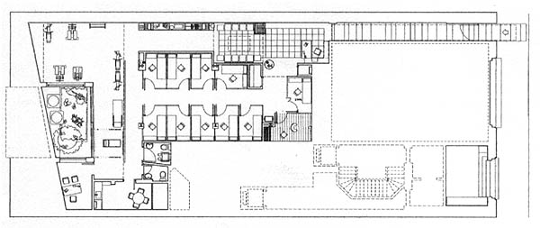
| RTC Caballito |
 |
Ciudad Autónoma de Buenos Aires, 1998
494m2, en planta baja y dos pisos.
Proyecto, dirección y gerenciamiento de obra. Centro de tratamiento renal
Obra realizada con el arq. Leandro O´Flaherty
Colaboraron:
Capeluto, Martín (jr.arq.), Durán, Rosana (ssr.arq.)
Contratista principal.: TECS S.R.L.
|
| RTC Concepción del Uruguay |
| |
Concepción del Uruguay, Provincia de Entre Ríos, 1999
500m2
Proyecto, dirección y gerenciamiento de obra. Centro de tratamiento renal
Obra realizada con el arq. Leandro O'Flaherty
|
| RTC Concordia |
 |
Concordia, Provincia de Entre Ríos, 1998
646m2, en dos plantas.
Proyecto, dirección y gerenciamiento de obra. Centro de tratamiento renal.
Obra realizada con el arq. Leandro O´Flaherty y el arq. Elvio Bollini
Colaboraron: Capeluto, Martin (ssr.arq.) Rohlic, Karina (hab.) Construcción - cálculo estructural: José León Construcciones.
|
| RTC Formosa |
 |
Provincia de Formosa, 1999
593m2, en dos plantas.
Proyecto, dirección y gerenciamiento de obra. Centro de tratamiento renal.
Obra realizada con el arq. Leandro O´Flaherty y la arq. Lucila Hertelendhy.
Colaborador: Capeluto, Martin (ssr.arq.)
|
| RTC Gualeguaychú |
 |
Gualeguaychú, Provincia de Entre Ríos, 1997
350m2
Proyecto, dirección y gerenciamiento de obra. Centro de tratamiento renal
Obra realizada con el arq. Leandro O'Flaherty
|
| RTC Neuquén |
 |
Provincia de Neuquén, 2000
1200m2, en 2 plantas.
Proyecto, dirección y gerenciamiento de obra. Centro de tratamiento renal
Obra realizada con el arq. Leandro O´Flaherty y dirección con el arq. Adrián Ibarroule.
Colaboraron: Duran, Rosana (ssr. arq.), Rohlic. Karina (jr. arq.) Construcción y cálculo estructural: Dicons S.A. y AIA S.A.
|
| RTC Pilar |
 |
Provincia de Buenos Aires, 1999
825m2, en 2 plantas.
Proyecto, dirección y gerenciamiento de obra. Centro de tratamiento renal
Obra realizada con el arq. Leandro O´Flaherty
Colaboraron: Capeluto, Martin (ssr.arq.), Duran, Rosana (ssr. arq.) Rohlic. Karina (jr. arq.) Construcción y cálculo estructural: TECS S.R.L.
|
| RTC San Justo |
 |
Provincia de Buenos Aires, 1999
509m2, en planta baja.
Proyecto, dirección y gerenciamiento de obra. Centro de tratamiento renal.
Obra realizada con el arq. Leandro O´Flaherty
Colaborador: Fumo, Sergio (ssr.arq.)
Contratista ppal.: Mecons, Suarez y Sebille Construcciones.S.R.L.
|
| RTC Varios |
| |
Proyecto, dirección y gerenciamiento de obra. Lomas de Zamora, Adrogué, Escobar, San Miguel, Concepción de Tucumán, Mendoza, Nogoyá, Gualeguay, etc.
|
| KITS Anchorena |
 |
Ciudad Autónoma de Buenos Aires, 1994
160m2, en planta baja.
Proyecto, dirección y gerenciamiento de obra. Tecnologías y Servicios Kinésicos. Sports & Test. Plazo de ejecución: 45 días
Obra realizada con el arq. Leandro O'Flaherty
|
| KITS Arenales |
 |
Ciudad Autónoma de Buenos Aires, 1994
260m2, en planta baja.
Proyecto, dirección y gerenciamiento de obra. Tecnologías y Servicios Kinésicos. Sports & Test.
Obra realizada con el arq. Leandro O´Flaherty
|
| KITS San Isidro |
 |
Provincia de Buenos Aires, 1993
260m2, en planta baja.
Proyecto, dirección y gerenciamiento de obra. Tecnologías y Servicios Kinésicos. Sports & Test.
Obra realizada con el arq. Leandro O'Flaherty
|
| Análisis Clínicos SA |
 |
Ciudad Autónoma de Buenos Aires, 1999
60m2, 6º piso
Laboratorio bioquímico de la calle Larrea
Obra realizada con el arq. Leandro O'Flaherty
|
| Sanatorio Güemes |
 |
Ciudad Autónoma de Buenos Aires, 1999
1065m2, 6º piso
Proyecto
Junto con el arq. Leandro O`Flaherty
|
|