| Profertil |
 |
Puerto Madero, Ciudad Autónoma de Buenos Aires, 2010
125m2
Proyecto, dirección y gerenciamiento de obras de ampliacipara nuevas oficinas.
|
| KMG Knowledge Management |
 |
Ciudad Autónoma de Buenos Aires, 2010
250m2
Proyecto, dirección y gerenciamiento de obras de refacción para nuevas oficinas.
|
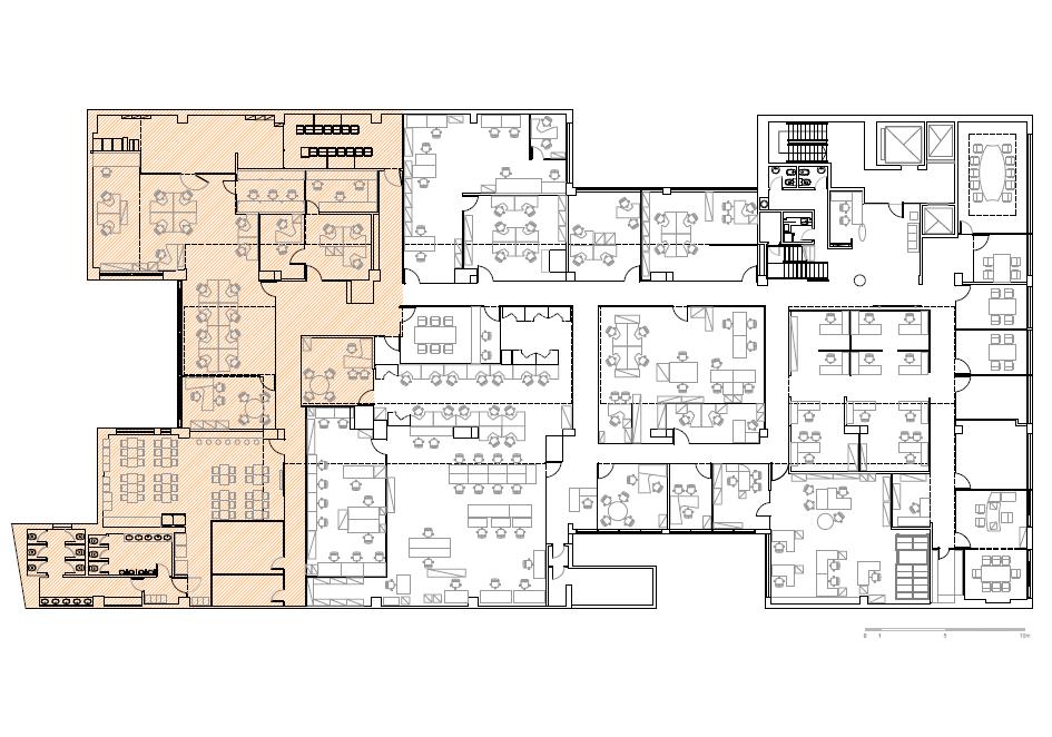
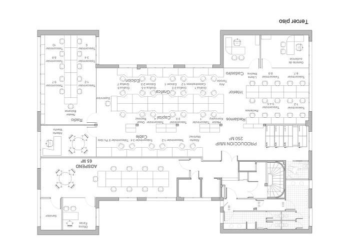
| IBOPE Suipacha - Refacción |
 |
Ciudad Autónoma de Buenos Aires, 2010
1600m2
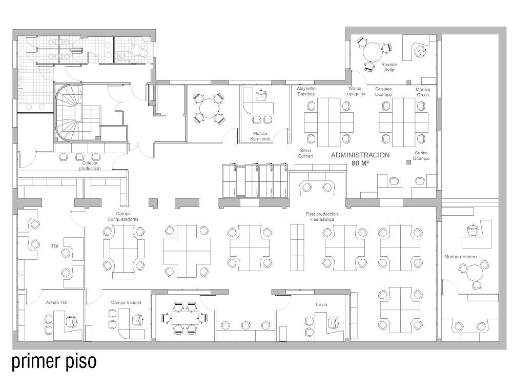
Obra en curso. 400m2 ejecutados.
Proyecto, dirección y gerenciamiento de obras de refacción para nuevas oficinas.
|
| IBOPE Suipacha - Ampliación |
 |
Ciudad Autónoma de Buenos Aires, 2009-2010
500m2
Proyecto, dirección y gerenciamiento de obras de refacción para nuevas oficinas.
|
| Minera Santa Cruz |
 |
Ciudad Autónoma de Buenos Aires, 2007-2008
650m2
Proyecto, dirección y gerenciamiento de obras de refacción para nuevas oficinas.
|
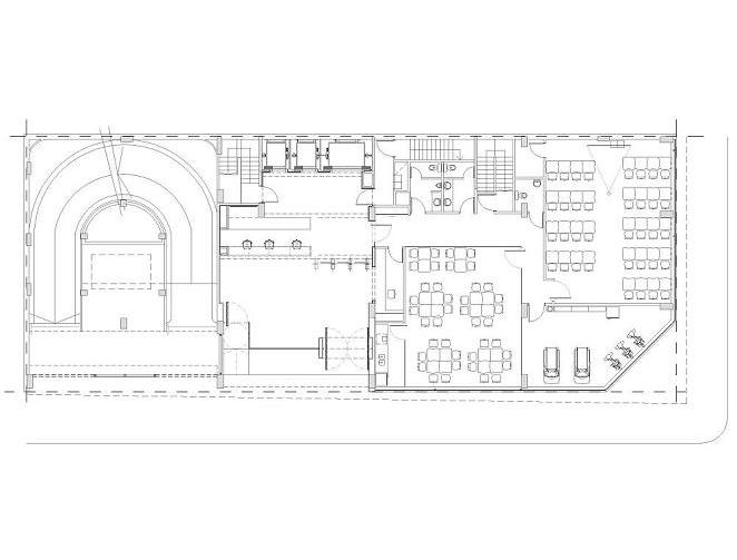
| Ebel de París - Transbel SA |
 |
Puerto Madero, Ciudad Autónoma de Buenos Aires, 2005
600m2
Proyecto, dirección y gerenciamiento de obras de refacción y equipamiento.
Obra realizada junto con el arq. Pablo Seggiaro Colaboradora: arq. Rosana Durán
|
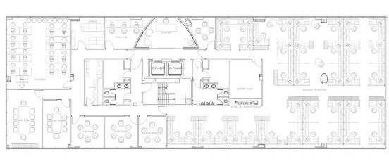
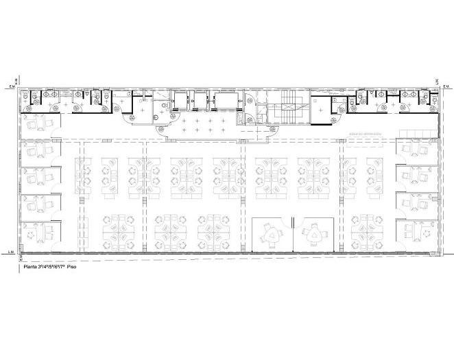
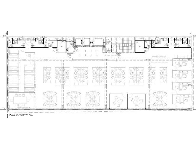
| PPD Argentina SA. Retiro |
 |
Cdad. de Buenos Aires, 2004 - 2007
2200 m2 450 + 450 +450 +450 + 300 m2
Proyecto, dirección y gerenciamiento de obras de refacción en oficinas realizadas en distintas etapas en los pisos 2°, 3°, 5°, 14° y 15° de la Torre IRSA en Plaza San Martín.
|
| Intel Argentina |
|
Puerto Madero, Cdad. de Buenos Aires, 2004 y 2006
650m2
Proyecto, dirección y gerenciamiento de obras de refacción de oficinas.
|
| MBA Banco de Inversiones |
 |
Puerto Madero, Ciudad Autónoma de Buenos Aires, 2003
2000m2. Edificio Puerto Viamonte I Pisos 1°, 2°, 4°.
Proyecto, dirección y gerenciamiento de obras de refacción de oficinas.
|
| Nortel Networks Argentina SA |
 |
Ciudad Autónoma de Buenos Aires, 2003
1600m2
Proyecto, dirección, coordinación y gerenciamiento de obras de refacción e infraestructura.
Obra realizada junto con el arq. Pablo Seggiaro
|
| SADIA Constructora SA |
 |
Proyecto y dirección de obra |
| Cisco |
 |
Buenos Aires, 2003
Trabajos de adecuación y refacción.
Edificio Laminar Plaza, Ing. Butty 240 piso 7.
|
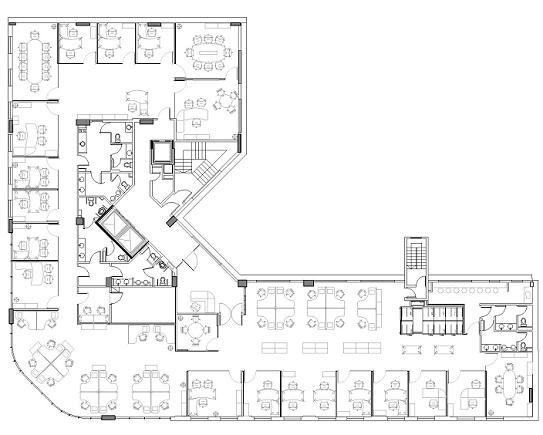
| IBOPE |
 |
Ciudad Autónoma de Buenos Aires, 2008
2000m2
Evaluación para locación alternativa de oficinas en edificio de Ramírez de Velasco 1847. Anteproyecto y presupuesto
|
| PPD Argentina SA. Estados Unidos 34 |
|
Ciudad Autónoma de Buenos Aires, 2008
Proyecto para ampliación. Documentación ejecutiva y presupuesto.
Colaborador: Arq. Matías Schisano
|
| RTC Salguero |
 |
Cdad. de Buenos Aires, 1997
Superficie: 640 m2 (totales en 3º y 6º pisos)
Proyecto, dirección y gerenciamiento de obras de refacción y equipamiento de oficinas.
Equipo de trabajo:
Durán, Rosana (ssr. arq.) Leandro O`Flaherty (sr.arq.) Sciandro, Marcelo (sr. arq.)
Construcción: Suarez y Sebille construcciones.
|
| Otras oficinas |
| |
- Estudio Dighero - Carricart
- Colliers International
|
|